Hold MLS# 25071002

104 Pine Street, Old Monroe, MO 63369

Subdivision: Niemeyers 1st Add

List Price: $120,000

(Original Price: $130,000)

Reduced $10,000 on Nov 21, 2025

2

Bedrooms

1

Baths

980

Area (sq.ft)

$122

Cost/sq.ft

1 Story

Type

167

Days on Market
Call Agent

Description

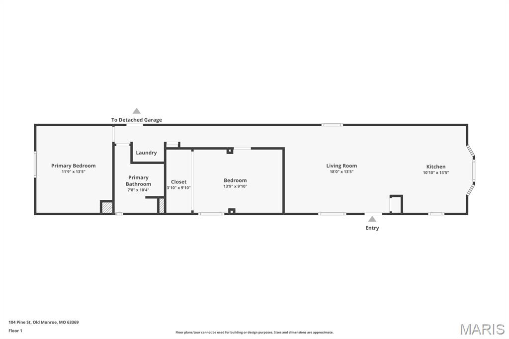
Welcome to 104 Pine Street — a 2-bedroom, 1-bath mobile home on a double city lot right in the heart of Old Monroe. This property features a large heated and cooled 4-car garage, perfect for hobbies or extra storage. Enjoy a large fenced front yard, ideal for pets or outdoor fun, and a convenient location just minutes from Highway 79. Affordable small-town living with big possibilities!

Property Information

List Price $ 120,000
Original Price $ 130,000
Status Hold
MLS# 25071002
Bedrooms 2
Full baths 1
Half baths 0
Main Floor Full Baths 1
Sq. Ft. Above 980
Lot Size
Acres 0
Subdivision Niemeyers 1st Add
Municipality Old Monroe
School District Winfield R-IV
County Lincoln
Property Type Residential
Style 1 Story
Style Description
Transaction Type
Special Conditions Standard
Type
Building Exterior Amenities
Building Style Other
Ownership
Special Description Standard
Appliances Some

Additional Information

Elementary School Winfield Elem.
Jr. High School Winfield Middle
Sr. High School Winfield High
Association Fee None
Architecture Other
Construction Aluminum Siding
Garage Spaces 4
Carport Spaces 0
Basement Description None
Fireplace Type
Fireplace Location
Lot Dimensions
Special Areas
Cooling Central Air
Sewer Public Sewer Sewer
Heating Forced Air
Water Public
Heat Source
Kitchen
Appliances
Dining
Interior Decor
Property Tax $221

Map Location

Change History

Listing Courtesy of Coldwell Banker Realty - Gundaker West Regional - [email protected]