Active Under Contract MLS# 26011820

32830 Willow Street, La Grange, MO 63448

Subdivision: Point

List Price: $169,000

4

Bedrooms

4

Baths

2,238

Area (sq.ft)

$76

Cost/sq.ft

Multi/Split

Type

46

Days on Market
Call Agent

Description

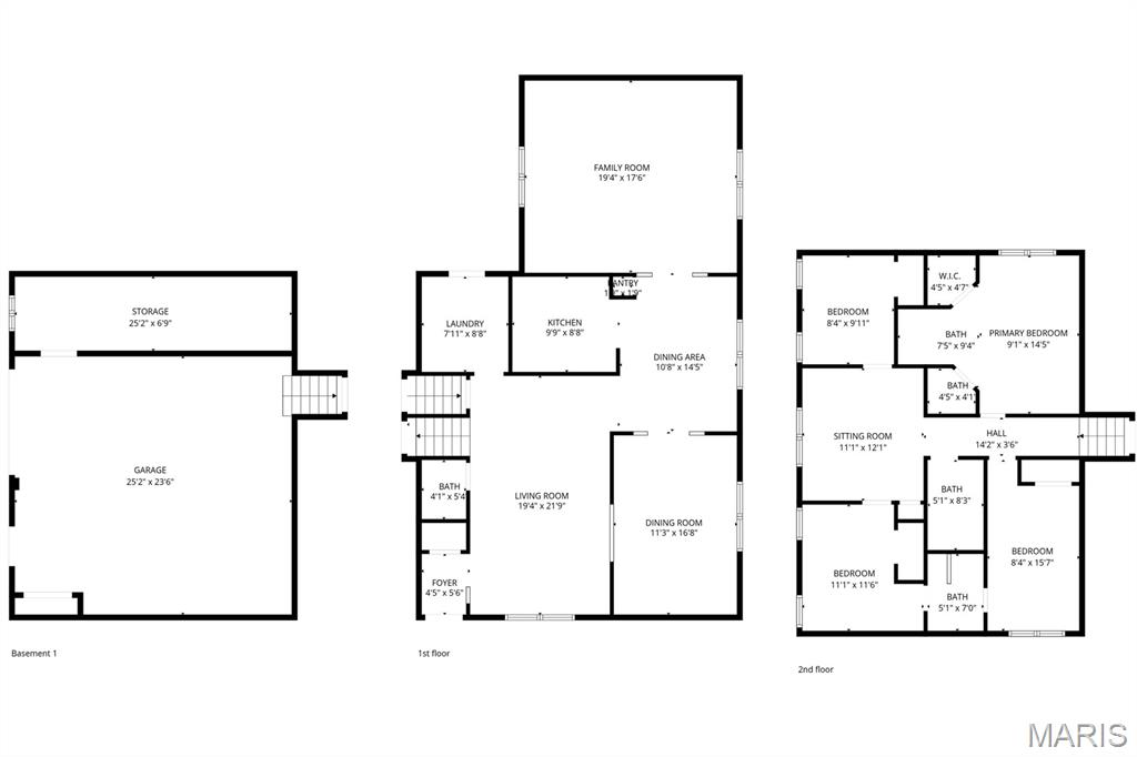
Spacious 4 bed, 3.5 bath split-level home offering 2,237 sq ft of living space plus extensive lower-level storage and workshop areas. Designed for comfortable living and entertaining, this home features multiple living areas, formal and casual dining spaces, and a large family/rec room. Functional layout includes a Jack-and-Jill bath, generous bedrooms, and abundant storage throughout. Oversized garage, detached storage building, and mature trees enhance the expansive yard. With Wakonda State Park in your back yard, enjoy privacy, scenic views, and direct access to nature — a rare blend of space, flexibility, and peaceful surroundings.

Property Information

List Price $ 169,000
Original Price $ 169,000
Status Active Under Contract
MLS# 26011820
Bedrooms 4
Full baths 3
Half baths 1
Main Floor Full Baths 3
Sq. Ft. Above 2,238
Lot Size
Acres 0
Subdivision Point
Municipality La Grange
School District Lewis Co. C-1
County Lewis
Property Type Residential
Style Multi/Split
Style Description
Transaction Type
Special Conditions Standard
Type
Building Exterior Amenities
Building Style Split Level
Ownership
Special Description Standard
Appliances Some

Additional Information

Elementary School Highland Elem.
Jr. High School Highland Jr.-Sr. High
Sr. High School Highland Jr.-Sr. High
Association Fee None
Architecture Split Level
Construction Aluminum Siding
Garage Spaces 1
Carport Spaces 0
Basement Description Unfinished
Fireplace Type
Fireplace Location
Lot Dimensions
Special Areas
Cooling Central Air
Sewer Public Sewer Sewer
Heating Natural Gas
Water Public
Heat Source
Kitchen
Appliances
Dining
Interior Decor Ceiling Fan(s),Eat-in Kitchen,Walk-In Closet(s)
Property Tax $871

Map Location

Rooms Dimensions

Room Dimensions (sq.rt)
Kitchen (Level-Main) 10 x 9
Living Room (Level-Main) 22 x 19
Dining Room (Level-Main) 17 x 11
Family Room (Level-Main) 19 x 18
Primary Bedroom (Level-Upper) 14 x 9
Bedroom (Level-Upper) 16 x 8
Bedroom (Level-Upper) 12 x 11
Bedroom (Level-Upper) 10 x 8
Sitting Room (Level-Upper) 11 x 12

Change History

Listing Courtesy of Happel Inc. Realtors - [email protected]